„Každý projekt vnímáme jako společnou cestu, jejímž cílem je funkční a promyšlený gastronomický provoz. Díky kombinaci technologií, zkušeností a přímé komunikace dokážeme celý proces zpřehlednit a zefektivnit.“
Při projektování gastronomických provozů klademe důraz na přesnost, přehlednost a maximální využitelnost projektové dokumentace v praxi. Pracujeme v profesionálním softwaru Autodesk Revit, který umožňuje efektivní modelování v prostředí BIM (Building Information Modeling).
Projektování v BIM znamená, že celý gastroprovoz navrhujeme jako inteligentní 3D model, kde jsou jednotlivé prvky propojené a obsahují veškeré důležité informace – od technických parametrů zařízení až po jejich prostorové vazby. Díky tomu dokážeme lépe koordinovat nároky na jednotlivé profese (elektro, voda, vzduchotechnika) a eliminovat chyby ještě před zahájením realizace.
CO OD NÁS DOSTANETE
Standardními výstupy z našeho projektování jsou:
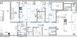
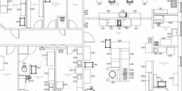
2D výkresy
Přehledné půdorysy a řezy pro stavební řízení i provedení stavby.
3D pohledy
Prostorová vizualizace celého provozu pro lepší představu a koordinaci.
IFC soubory
Otevřený formát pro výměnu dat v rámci BIM mezi profesemi a partnery.
JAK PROBÍHÁ SPOLUPRÁCE
Spolupráci s klientem stavíme na otevřené komunikaci, přehledném procesu a srozumitelném výstupu. Každý projekt je trochu jiný, ale základní postup zůstává stejný:
1
První kontakt a definice zadání
Na začátku si s klientem ujasníme rozsah a cíle projektu. Zajímají nás provozní požadavky, prostorové možnosti i případná specifika provozu. Na základě těchto informací připravíme cenovou nabídku na míru.
2
Návrh a průběžná konzultace
Po schválení nabídky začínáme pracovat na návrhu. Pracujeme v prostředí Revit a BIM, díky čemuž můžeme už ve fázi návrhu sdílet prostorový model provozu. Klient má tak možnost nahlížet do 3D modelu, lépe pochopit návrh a efektivně ho připomínkovat. Klient má vždy přístup do sdílené složky, kde jsou jsou aktuální výstupy z naší práce.
3
Konzultace s hygienou
Jakmile je klient se základním návrhem spokojen, konzultujeme projekt s příslušnou hygienickou stanicí. Pokud dojde k připomínkám, návrh dle potřeby upravíme nebo doplníme – vše v úzké součinnosti se zákazníkem.
4
Finalizace a projektová dokumentace
Po dohodě na finální podobě návrhu zpracujeme potřebné výstupy – soupis zařízení, technickou zprávu, energetickou bilanci apod. Rozsah těchto podkladů vždy závisí na fázi projektu – ať už jde o studii, dokumentaci pro stavební povolení nebo podklady pro realizaci.





