Projektování gastronomických provozů
Navrhujeme profesionální gastroprovozy na míru – od prvotní studie až po realizační dokumentaci. Pomáháme klientům vytvořit funkční, efektivní a hygienicky bezchybný provoz, který odpovídá všem platným normám i individuálním potřebám. Zjistěte více o našem přístupu k projektování.

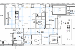
Studie
Cílem studie je ověřit prostorovou náročnost plánovaného provozu na základě vstupního zadání. Součástí je také orientační energetická bilance. Na přání klienta lze studii rozšířit o další podklady – například předběžný rozpočet gastro technologie či návrh dispozičního řešení.
Dokumentace pro stavební povolení
V této fázi navrhujeme budoucí provoz v souladu s požadavky zadavatele i platnou legislativou. Návrh konzultujeme s příslušnou hygienickou stanicí. Výstupem je soupis technologického vybavení včetně orientační rozpočtové ceny, energetické bilance a technické zprávy pro oblast gastro.
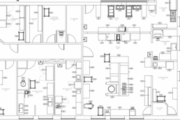
Dokumentace pro provedení stavby
Detailní projektová dokumentace, která slouží jako podklad pro samotnou realizaci provozu. Obsahuje veškeré vývody a návaznosti na ostatní profese – elektro, voda, vzduchotechnika atd. Cílem je minimalizovat rizika a nejasnosti při samotné výstavbě.
Dokumentace pro výběr zhotovitele
Přesná specifikace všech prvků gastro technologie určená pro výběrové řízení. V případě státní sféry odpovídá požadavkům legislativy pro veřejné zakázky. U soukromých projektů přizpůsobujeme dokumentaci konkrétním potřebám a standardům investora.
∗ Projekty zpracováváme po celé ČR
3D skenování & digitální modely prostor
Součástí našich služeb je také 3D skenování stávajících prostor, které zajišťuje naše specializované oddělení. Využíváme mobilní 3D skener FARO Orbis – špičkové zařízení pro rychlé a přesné snímání interiérů.
Díky tomu dokážeme zachytit prostor včetně konstrukčních detailů a technických prvků, které následně převádíme do digitálního modelu. Výsledkem je mračno bodů, které slouží jako přesný podklad pro další projektové fáze.
3D skenování nabízíme jako doplněk k našim projekčním službám, nebo samostatně – podle potřeb projektu. Více informací naleznete na našem webu.
Co Vám 3D sken přinese:
- Rychlé a velmi přesné zaměření i složitých prostor, kdy hlavním výstupem je mračno bodů s vysokou přesností až 2 mm
- Z tohoto mračna můžeme vytvořit digitální model, který lze snadno integrovat do BIM (např. Revit)
- Ideální podklad nejen pro rekonstrukce gastroprovozů, kde není k dispozici aktuální dokumentace v určité kvalitě


Máte dotaz k našim službám?
Podívejte se na nejčastěji kladené dotazy nebo nás kontaktujte a společně probereme Vaše konkrétní požadavky.








